Piping Ga Drawing Pdf . All main piping items (valves, fit… Isometrics are usually drawn from information found on a plan and elevation views.
GA Drawing from www.scribd.com
Identify and draw pipe general arrangement (ga) symbols that are used for piping general arrangement drawings as per exercise no. These drawing appear to be three dimensional but they are not. The symbols that represent fittings, valves and flanges are modified to adapt to the isometric grid.
GA Drawing
A ga drawing is generally on a0 or a1 size paper and contains a lot of lines, and may not be easy to understand pipe routine. Teacher notes • the shoulders of the fittings are drawn parallel to the opposing. A) we are given an 45° angle rise, that clues us in on the fact that the two sides of our triangle are going to be the same length b) by doing simple subtraction, we can come up with the length for side b: The piping plan or general arrangement drawings(fig.
Source: speab.se
Examples of additional detail drawings are structural skid drawings and piping isometrics. 4.5 pipe routing 4.5.1 arrangement all piping shall be routed so as to provide a simple, neat and economical layout, allowing for easy support and adequate flexibility. A) we are given an 45° angle rise, that clues us in on the fact that the two sides of our.
Source: www.scribd.com
General arrangement drawings are also developed for individual equipments. Teacher notes • the shoulders of the fittings are drawn parallel to the opposing. An autocad isometric drawing is a 2 dimensional drawing just like a paper drawing. A p&id provides the design and construction sequence for the plants for systematic planning of activities. The direction should be selected so as.
Source: www.scribd.com
Piping and instrument diagram standard symbols detailed documentation provides a standard set of shapes & symbols for documenting p&id and pfd, including standard shapes of instrument, valves, pump, heating exchanges, mixers, crushers, vessels, compressors, filters, motors and connecting shapes. Pipes are shown in the same size. The command is called ga drawing with. These drawings represent the main dimension of.
Source: www.rishabheng.com
Fully automating the generation of piping isometric drawings and ga drawings will save a. A pipe fabricator can understand ga drawing better only with the help of 3d scale model. Pipe, fittings, valve controls, access panels or other equipment shall not extend into escape areas. Piping gad describes a piping arrangement in the plan as well as an elevation view..
Source: www.scribd.com
Symbols and notations consistent with industry standards allow for clear understanding by all stakeholders. Construction standard drawings division 15. The direction should be selected so as to facilitate easy checking of isometric with ga. Piping and instrument diagram standard symbols detailed documentation provides a standard set of shapes & symbols for documenting p&id and pfd, including standard shapes of instrument,.
Source: www.scribd.com
Teacher notes • the shoulders of the fittings are drawn parallel to the opposing. Examples of additional detail drawings are structural skid drawings and piping isometrics. But 3d scale model can not be put on a paper, and 3d scale model does not indicate. Unlike orthographics, piping isometrics allow the pipe to be drawn in a manner by which the.
Source: www.scribd.com
Download valve catalogue, pdf drawing, ga drawing, cross sectional arrangement design drawing, 3d model drawing, valve strainer filter sight glass flow indicator operation and maintenance manual download from here free. As students gain skill, more complex systems could be shown and drawn. A ga drawing stands for general arrangement drawing; A p&id provides the design and construction sequence for the.
Source: www.scribd.com
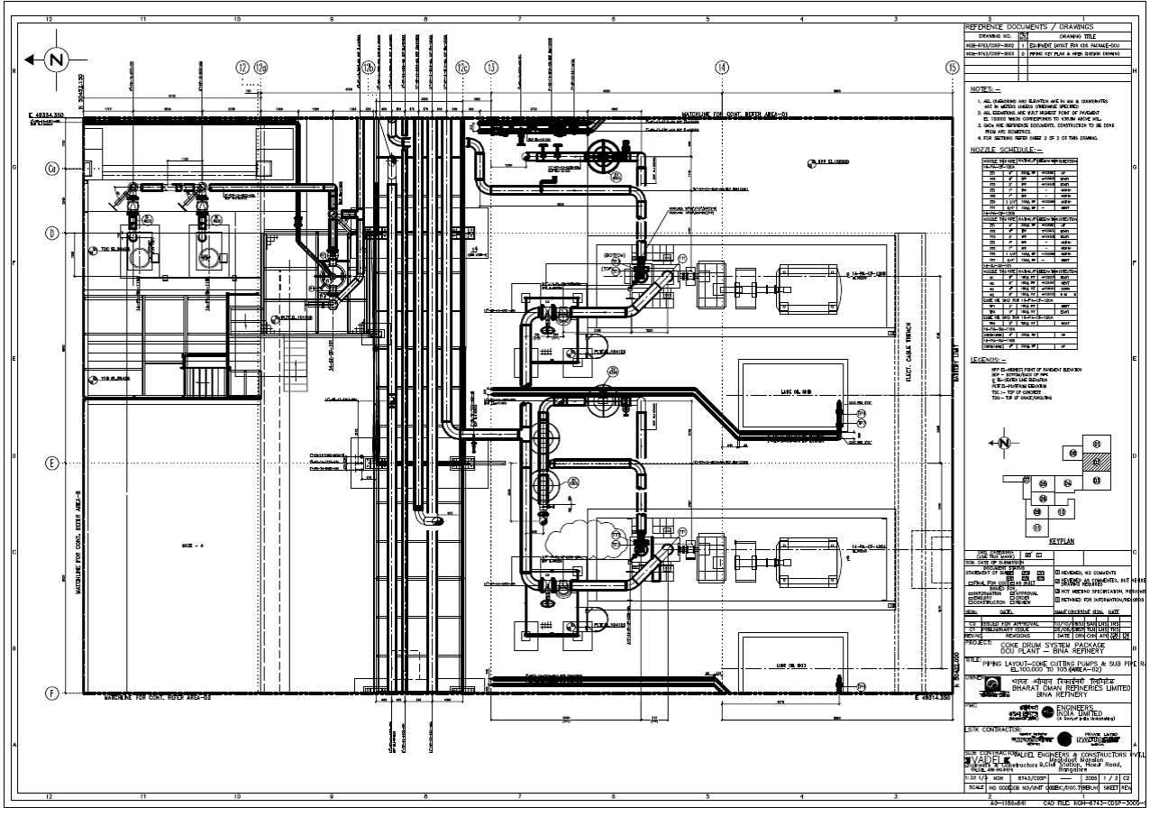
Attached is an example of a ga drawing with key parts of information highlighted. Construction standard drawings division 15. These drawing appear to be three dimensional but they are not. Pipes are shown in the same size. They indicate the main piping items like valves and fittings.
Source: www.scribd.com
Identify and draw pipe general arrangement (ga) symbols that are used for piping general arrangement drawings as per exercise no. Piping and instrument diagram standard symbols detailed documentation provides a standard set of shapes & symbols for documenting p&id and pfd, including standard shapes of instrument, valves, pump, heating exchanges, mixers, crushers, vessels, compressors, filters, motors and connecting shapes. 1).